069 Neubau Wohn- und Geschäftshaus GIRASOLE Sursee

Das neue Wohn- und Geschäftshaus ist in Höhe und Tiefe gestaffelt und erscheint – je nach Blickwinkel – als ein grosses oder als vier miteinander verbundene Häuser. Die markante Gliederung des Volumens fügt dieses passend in das gebaute Umfeld ein.

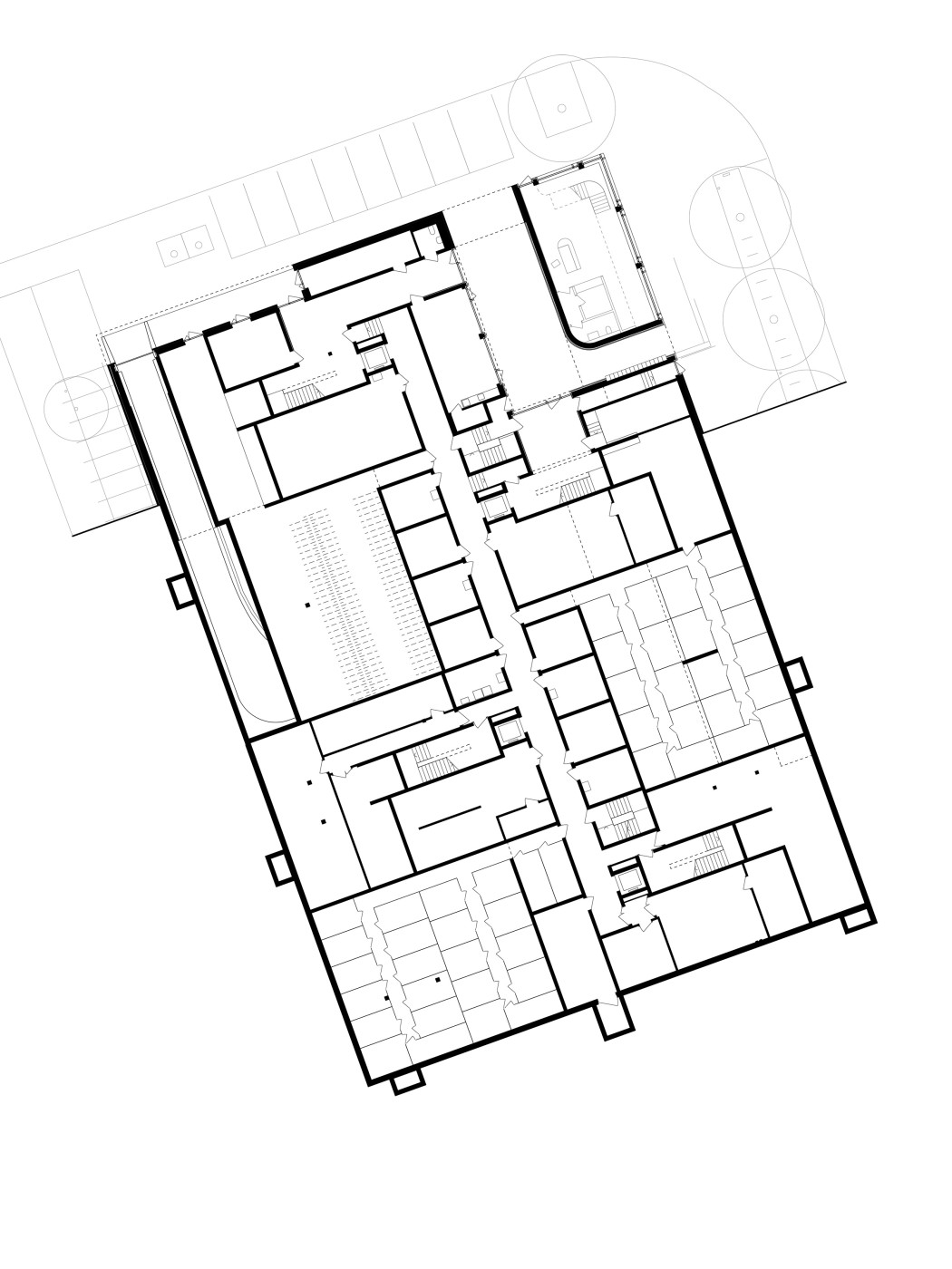
Durch das Vor- und Rückspringen der Gebäudeteile entstehen zwei- und dreiseitig gefasste Höfe, die sich auf der Westseite mit dem angrenzenden Grünstreifen verzahnen. Auf der Ostseite sind diese mit eingeschossigen Einbauten geschlossen. Somit entsteht entlang der Christoph-Schnyder-Strasse eine durchlaufende Schaufensterfront.

Das Erdgeschoss beherbergt Verkaufs- und Dienstleistungsflächen. Das erste Obergeschoss wird als eine grosse zusammenhängende Bürofläche genutzt. In den vier Geschossen darüber sind 45 Wohnungen untergebracht. Alle Häuser werden über die beiden strassenseitigen Höfe erschlossen, an welche neben den Eingangshallen auch je ein Gemeinschaftsraum angrenzt. Die Treppenhäuser führen alle aufs Dach. Dieses ist mit begehbaren und unterschiedlich begrünten Flächen sowie mit Pergolen und einer Aussenküche zu einem attraktiven, für alle Bewohner zugänglichen, Dachgarten ausgestaltet.

Im Untergeschoss liegt das Parking mit 60 Abstellplätzen. Das darüberliegende Zwischengeschoss beherbergt alle Technik- und Kellerräume sowie ein grosszügiges Veloparking. Ein langer, zur «Rue intérieure» ausgebauter, Korridor verbindet die vier Treppenhäuser der Obergeschosse mit den zwei Treppen des Parkings.

Jedes der oberen Geschosse zählt zwölf Wohnungen. Die kleineren, zentral liegenden Wohnungen sind in der Diagonale von Ost nach West organisiert und grenzen jeweils an zwei Höfe. An den Enden der einzelnen Gebäudearme liegen die grossen, auf drei Seiten orientierten Wohnungen. Bandfenster, offene Raumabfolgen und raumhohe Türen verleihen den Wohnungen Loft-ähnlichen Charakter. Sämtliche Loggien sind nach Süden oder Westen orientiert.

Glanz, Relief und Farbe der massgeschneiderten Keramikfassade tragen dazu bei, dass sich mit den im Verlauf des Tages ändernden Lichtverhältnissen auch das Aussehen des Gebäudes wandelt. Aussenvorhänge auf den Loggien und Ausstellmarkisen im Erdgeschoss tun das Ihrige dazu.

Studienauftrag 1. Preis 2017
Gestaltungsplan 2018, Realisierung 2019-2024
Bauherrschaft EA Projektentwicklung Oberkirch

In Zusammenarbeit mit kunzarchitekten, Sursee
Team: Christoph Schwander, Nicole Humbel, Karolin Wey, Niels Kunz, Andrea Vale, Basil Arnet, Patrik Emmenegger, Michelle Lieberherr, Mattia Kuhn, Milena Marti, Vala Thorisdottir
Projektleitung: Andreas Amrein, Hans Kunz

Örtliche Bauleitung Kaufmann & Partner, Luzern; Umgebung ORT für Landschaftsarchitektur, Zürich; Statik Kost + Partner, Sursee; Elektroplanung pzm, Luzern; Haustechnik Schär + Egli, Sursee; Sanitärplanung Keller Haustechnikplaner, Sursee; Fassadenplanung EBP Schweiz, Zürich
Fotos Innenaufnahmen Seraina Wirz, Zürich; Aussenaufnahmen Lukas Murer, Zürich