062 Umbau Wohnhaus Abendweg Sursee
Das 1954 erbaute Zweifamilienhaus am Abendweg wurde um die Jahrtausendwende durch Dritte bereits ein erstes Mal erweitert. Mit einem massiven, eingeschossigen Anbau wurde damals die Wohnung im Parterre deutlich vergrössert. Rund 15 Jahre später folgt die Erweiterung der Wohnung im Obergeschoss. Dabei wird die für die kleine 4-Zimmer-Wohnung deutlich zu grosse Terrasse auf dem Anbau in Wohnraum verwandelt und mit der Wohnung und dem darüberliegenden Estrich zu einer grosszügigen 7-Zimmer-Maisonettewohnung zusammengefasst. Neben der Erweiterung der Wohnfläche gilt es auch die Raumhöhen den neuen Raumgrössen anzupassen.
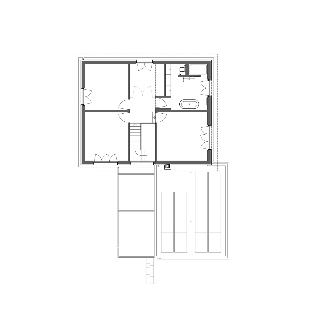
Das zentrale Entrée mit verspiegeltem Schrank führt in den grosszügigen Essbereich. Daran schliessen Küche und Wohnraum mit Terrasse an. Im rückwärtigen Bereich liegen das Gäste-WC und die als Büros genutzten, ursprünglichen Schlafzimmer. Der zentrale Treppenaufgang führt ins Dachgeschoss mit Diele, drei quadratischen Zimmern und einem ganz in dunkler Farbe gehaltenen Badezimmer mit frei stehender Wanne.
Die Kombination von fein abgestuften Grau- und Beigetönen, massivem Eichenholz und geschliffenen Unterlagsböden, schwarzem Pirelli-Boden sowie schwarzen Küchenfronten mit massiver Edelstahlabdeckung schafft eine wohnliche Atmosphäre.
Direktauftrag
Bauherrschaft privat
Realisierung 2016-2018
Tragwerk Konstruktiv Ingenieure und Planer, Gränichen; Holzbau Hecht Holzbau, Sursee; Haustechnik HSE, Geuensee; Elektroplanung electrotime Wechsler + Bucher, Geuensee; Photovoltaik BE Netz, Luzern
Fotos Bruno Meier, Sursee